Your privacy is important to us. This website uses cookies to enhance user experience and to analyze performance and traffic on our website. By using this website, you acknowledge the real-time collection, storage, use, and disclosure of information on your device or provided by you (such as mouse movements and clicks). We may disclose such information about your use of our website with our social media, advertising and analytics partners. Visit our Privacy Policy and California Privacy Disclosure for more information on such sharing.

Log In

Our Brands

Helpful Tools

Search

Explore Quailridge Summit Series US

Home > Quailridge Summit Series US

Explore Quailridge Summit Series US

Quailridge Summit Series US RVs

Explore Quailridge Summit Series US

Summit Park Models

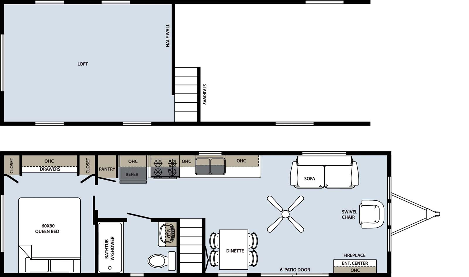
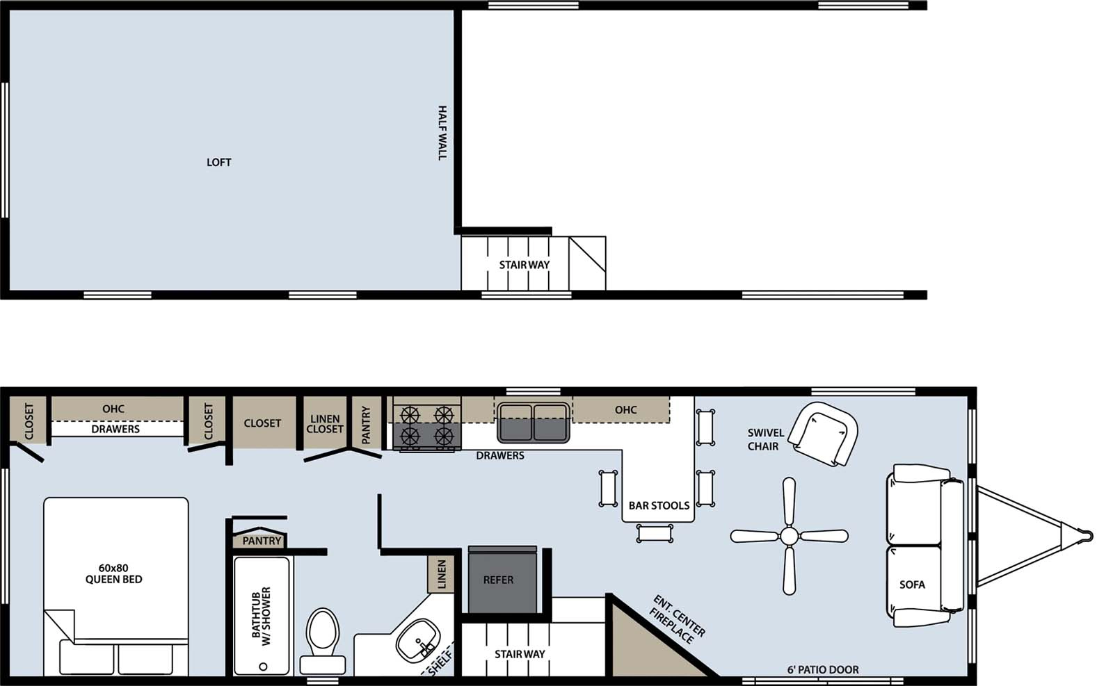
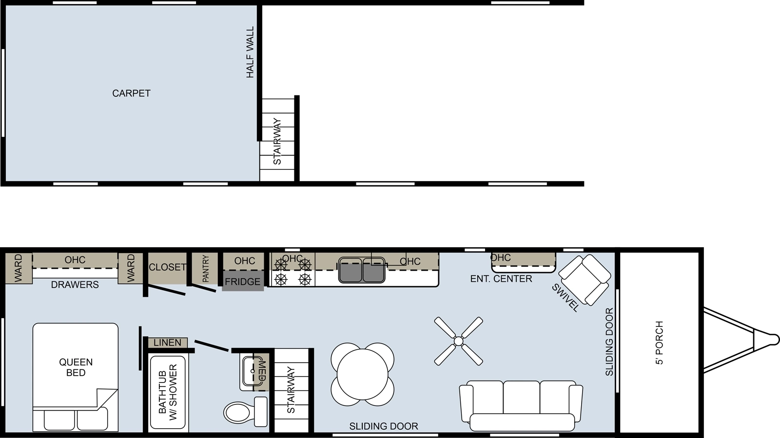
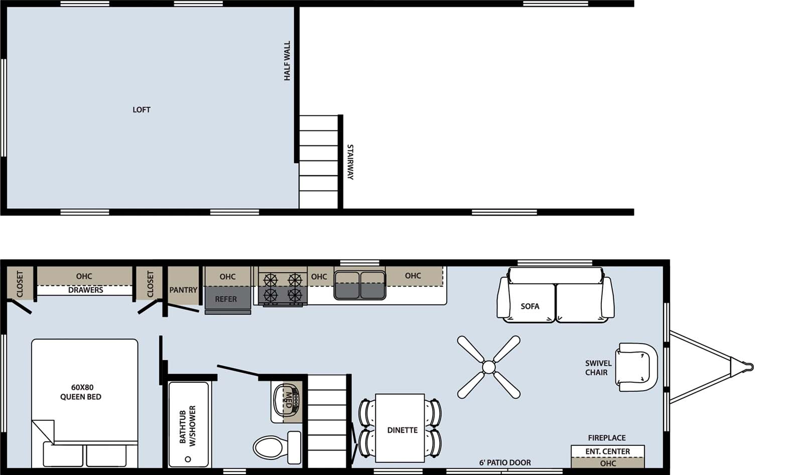
Summit Park Models offer comfort, versatility, and refined design for RV consumers wanting an upgraded park model experience. Each floor plan maximizes space with thoughtful layouts, including loft options for additional flexibility. Strong construction, enhanced amenities, and smart use of every inch support extended stays and outdoor enjoyment. Summit appeals to park model buyers seeking durability and value.

>> See What's Available in Canada!



Quailridge Summit Series US Exterior Image
Follow Quailridge Summit Series US on Social Media:

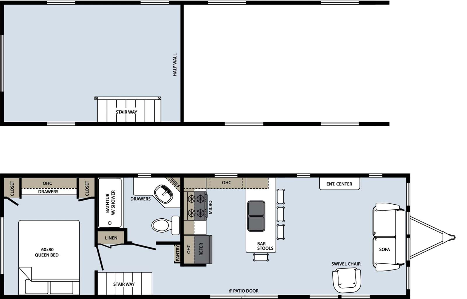
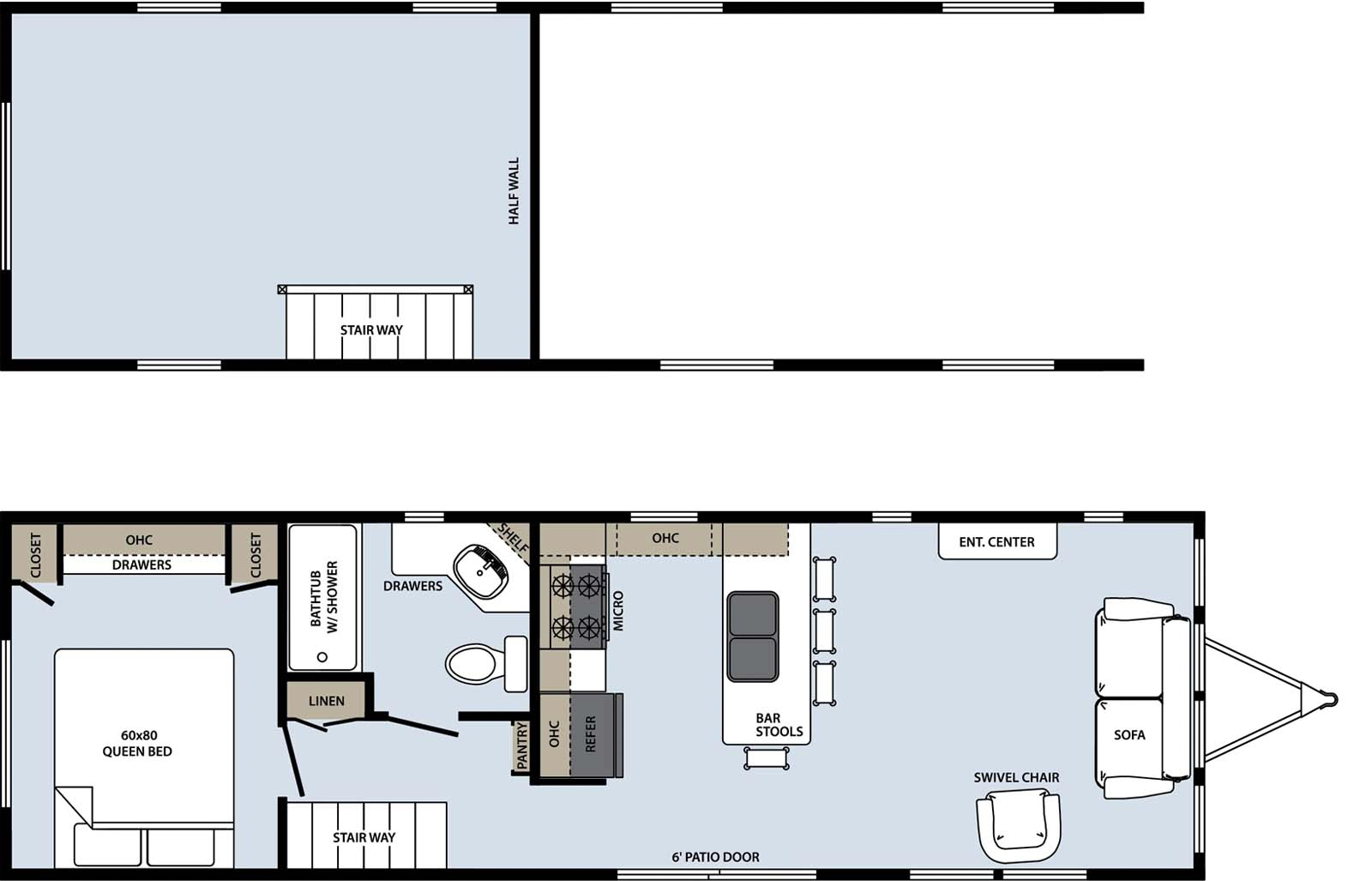
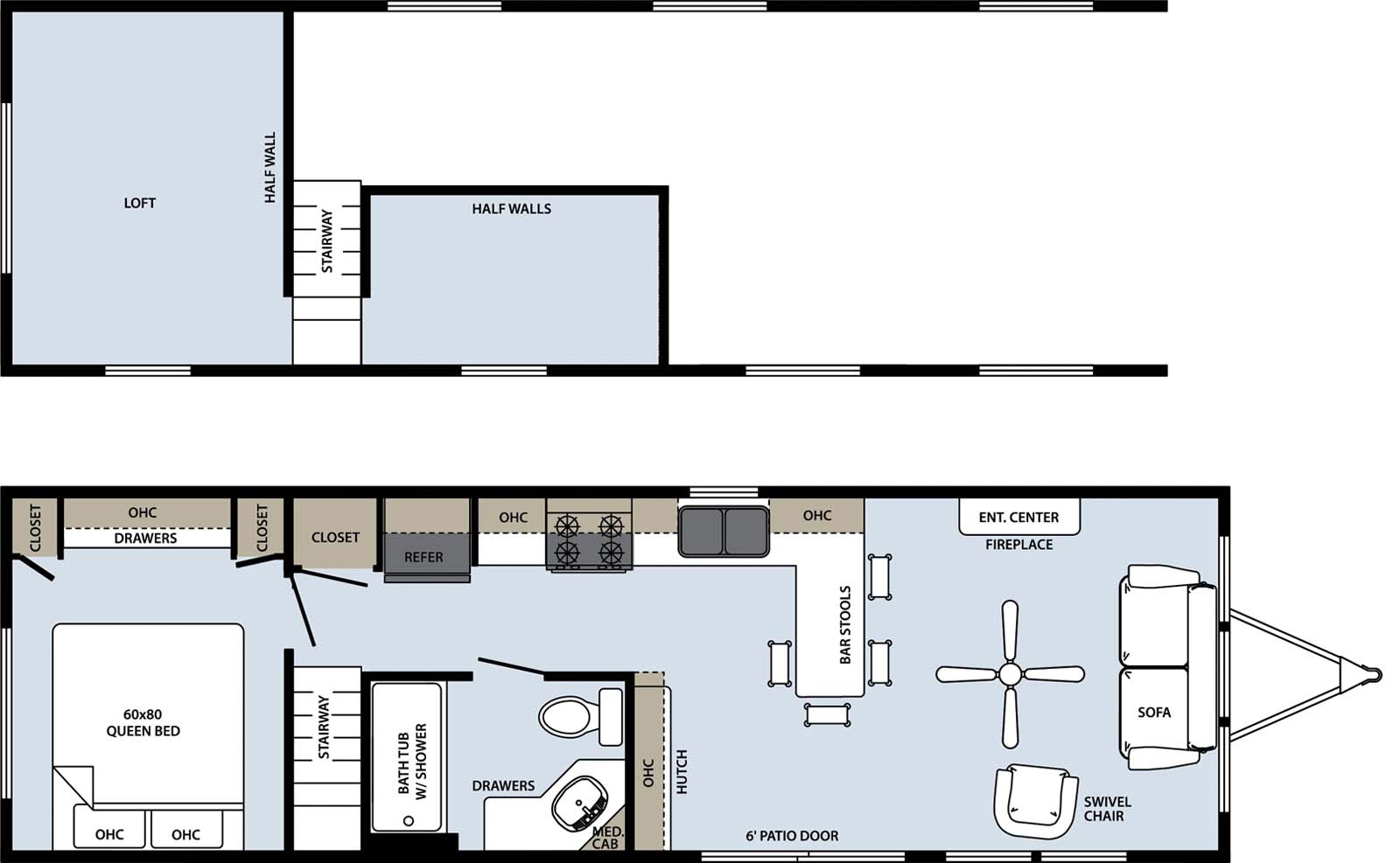
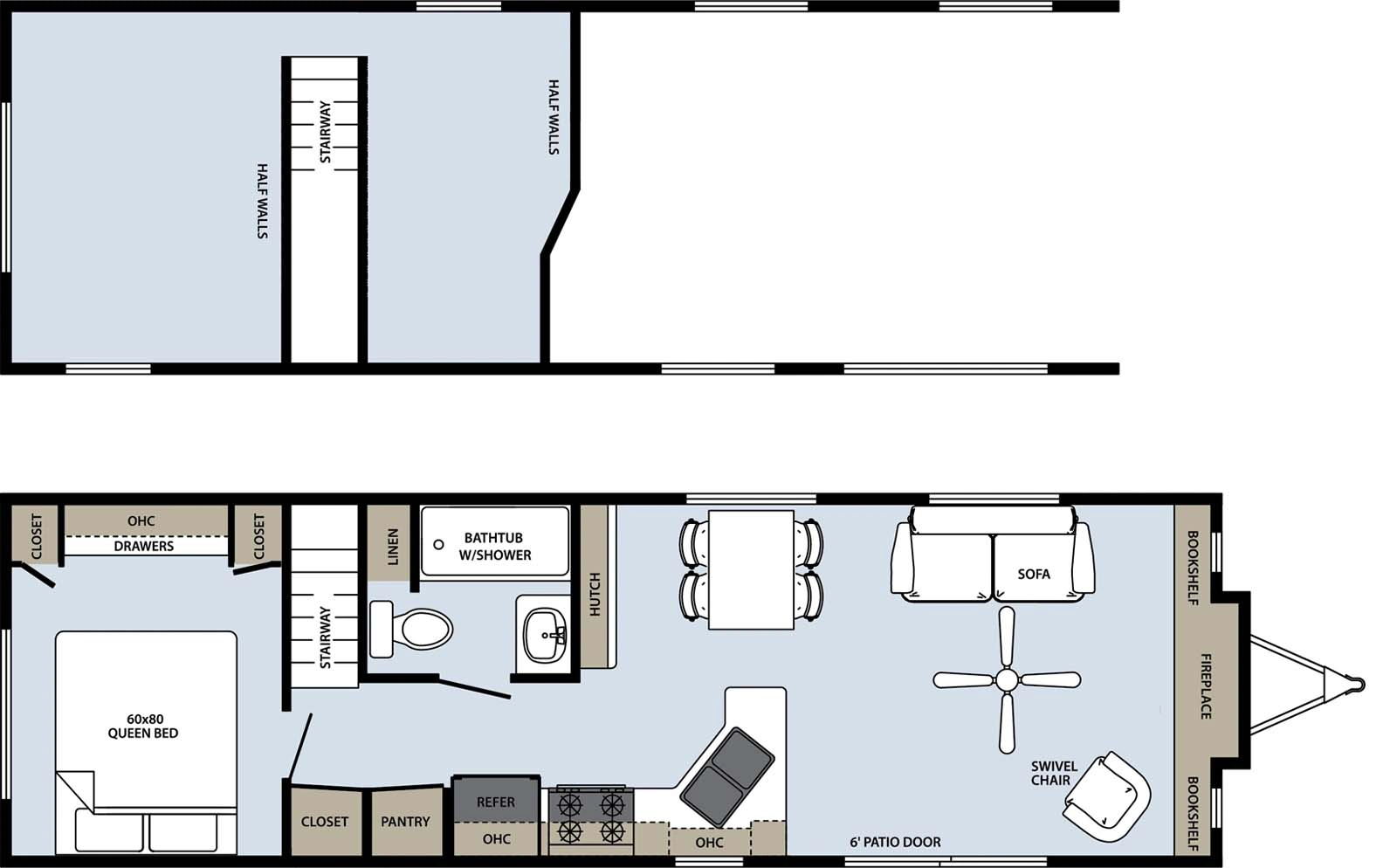
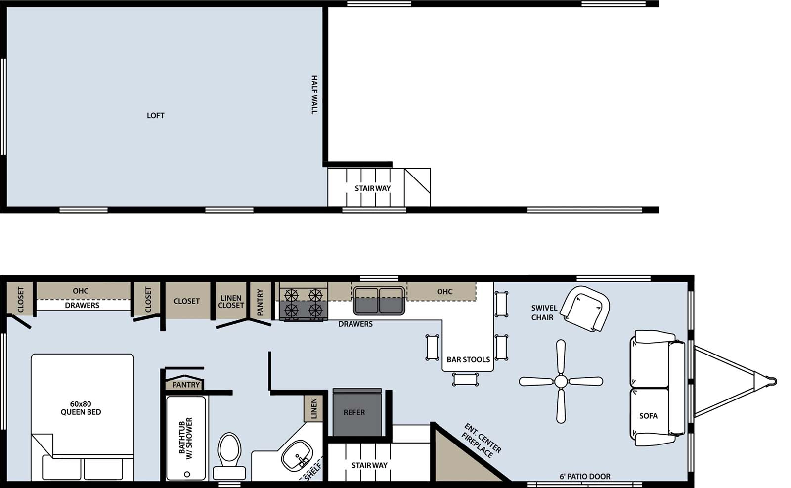
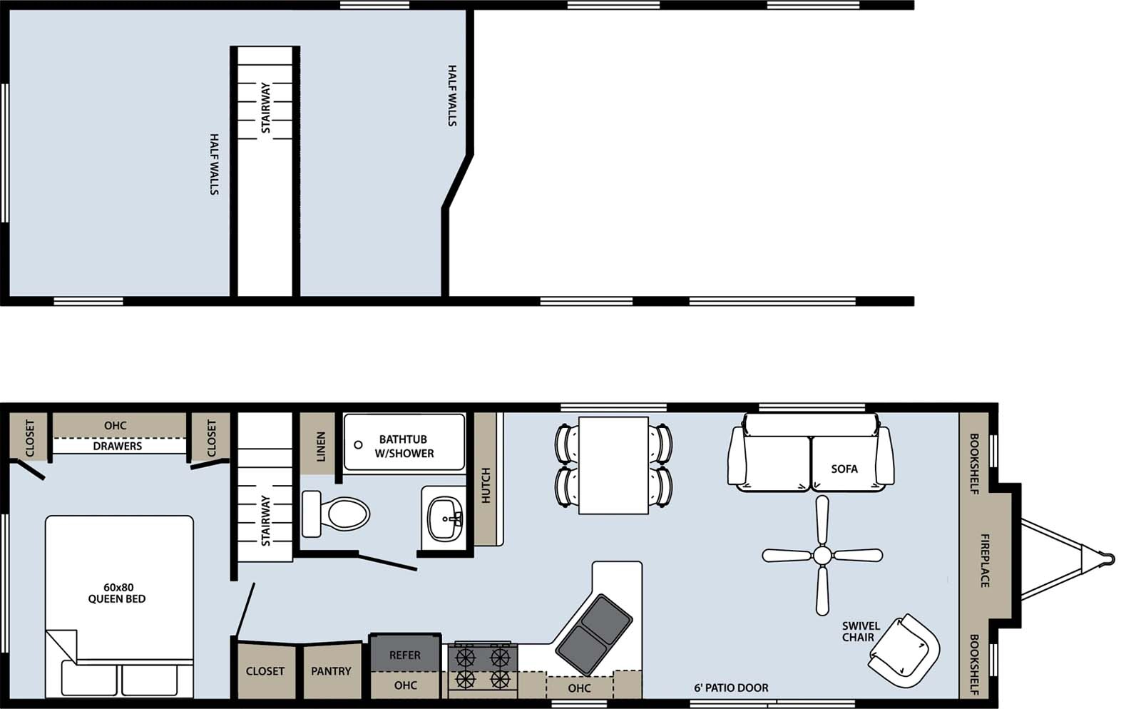
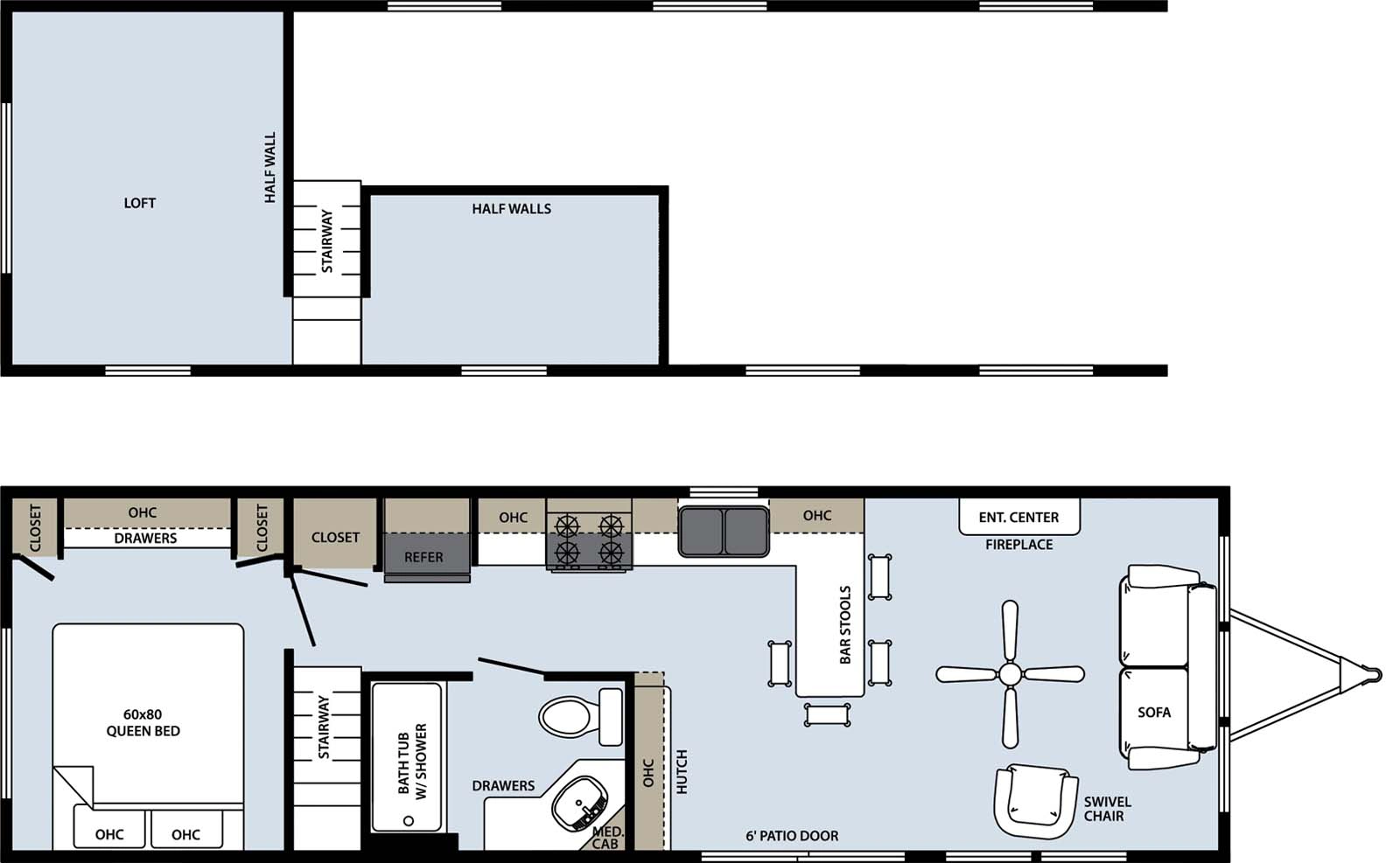
2026 Quailridge Summit Series US Floorplans

Summit US Models - all units available as non-loft

Construction

Find The Perfect Bus
1 2 3 4 5 6 7 8 9 10 11 12 13 14 15 16

2026 Quailridge Summit Series US Features & Options

    • 10" welded i-beam chassis
    • Corrosion resistent enclosed underbelly
    • 2"x6" transverse floor joist 16" on center
    • 5/8" tongue and groove plywood decking
    • R22 floor and roof insulation
    • OSB wall sheathing w/ weather wrap
    • Thermopane windows
    • Residential vinyl siding
    • 16" on center rafters
    • Fixed overhangs
    • Perimeter ice/storm shield
    • 30-year warranty asphalt shingles
    • Tall loft w/extended dormers
    • Premium vinyl siding
    • Metal underbelly
    • Front trapezoid window
    • Doorside add on eave
    • Cushion backed vinyl flooring
    • Carpeted loft and steps (U.S. models only)
    • Batten strips ipo seam tape
    • Stainless steel kitchen sink
    • 1-piece fiberglass tub/shower
    • Residential porcelain toilet
    • 60x80 serta queen bed
    • Shaker style 2 panel interior doors
    • Recliner ipo swivel chair
    • 60x80 queen serta bed upgrade
    • 60" bedspread
    • Nightstand
    • End table
    • Pocket door ipo swing door (bedroom or bathroom)
    • Shower ipo tub/shower
    • Shower door ipo curtain
    • Residential black kitchen appliances (17.5 cu ft. refrigerator, 30" gas range, microwave)
    • Electric fireplace
    • 40,000 BTU ducted furnace w/ perimeter registers
    • 5,000 BTU loft A/C (loft models only)
    • 20 gallon electric water heater
    • Bath fan
    • Fire extinguisher
    • Smoke detectorrs
    • Carbon monoxide detector
    • Living room ceiling fan
    • Stackable washer/dryer prep (where available)
    • Stackable washer/dryer (where available)
    • 56,000 BTU upright furnace (where available)
    • 13,500 BTU park pack A/C ship loose
    • A/C prep for park pack A/C
    • Central A/C prep (56k furnace required)
    • 16 gallon gas/electric water heater (where available)

Quailridge Summit Series US Update Alerts

Please sign up below if you would like to receive notifications when we make updates to this brand. Or, if you only want updates on a particular floorplan, you can select to be updated on each one individually.