Your privacy is important to us. This website uses cookies to enhance user experience and to analyze performance and traffic on our website. By using this website, you acknowledge the real-time collection, storage, use, and disclosure of information on your device or provided by you (such as mouse movements and clicks). We may disclose such information about your use of our website with our social media, advertising and analytics partners. Visit our Privacy Policy and California Privacy Disclosure for more information on such sharing.

Log In

Our Brands

Helpful Tools

Search

Explore America's Park Cabins

Home > America's Park Cabins

Explore America's Park Cabins

America's Park Cabins RVs

Explore America's Park Cabins

America's Park Cabins - Premium Cabin Series

The Forest River Premium Cabin Series blends rustic charm with dependable craftsmanship to create memorable experiences for campgrounds and outdoor hospitality locations. A wide range of floorplans, from compact studio cabins to larger models sleeping up to eight guests, gives owners and operators flexible options. Durable construction and strong guest appeal make America's Park Cabins a premium choice that elevates the outdoor recreation experience and encourages repeat visits.



America's Park Cabins Exterior Image
Follow America's Park Cabins on Social Media:

2026 America's Park Cabins Floorplans

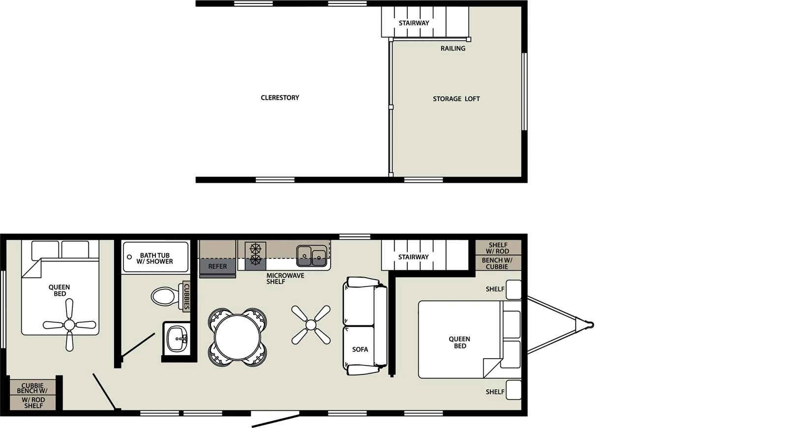
Premium Cabin Series - Non-Loft

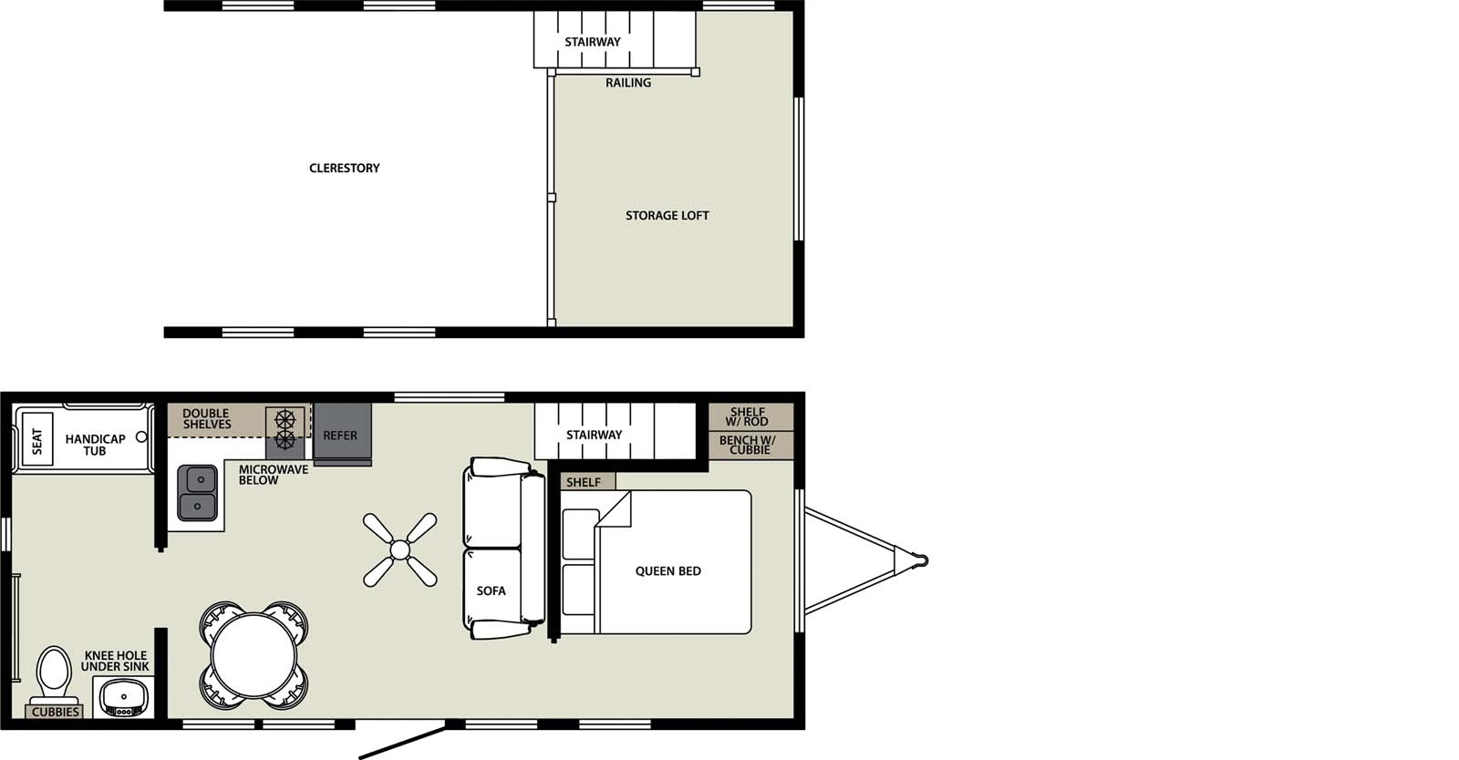
Premium Cabin Series - Loft

2026 America's Park Cabins Features & Options

    • 10" extruded steel i-beam chassis
    • Detachable hitch
    • Corrosion resistant poly underbelly
    • 2"x6" transverse floor joist 16" on center
    • 5/8" tongue and groove plywood decking
    • R22 floor insulation
    • 2"x4" sidewall & end wall studs 16" on center
    • R11 sidewall insulation
    • 3/8" OSB wall sheathing
    • House type vapor barrier on all exterior walls
    • 90" sidewall height
    • Residential thermopane single hung windows
    • Mahogany cement board lap siding
    • 5/8" composite decking (porch area 20fp)
    • Residential truss rafters
    • R22 roof insulation
    • Green metal roof
    • Exterior porch lights
    • Exterior GFI recept
    • 1x6 tongue and groove pine walls and ceiling
    • Pine trim
    • Cathedral ceilings (non-loft models)
    • Vaulted gable at door (where applicable)
    • Residential vinyl plank flooring
    • Vinyl mop board throughout
    • 2' faux wood window blinds
    • Ceiling fan w/light kit
    • Smoke detector
    • LP detector
    • Hardwood dinette table w/4 chairs
    • 2 cushion hide a bed
    • Fire extinguisher
    • LED lighting
    • Residential rocker light switches
    • Prep and hook ups for wall mount TV
    • Residential base cabinets w/hidden hinges
    • High pressure laminated counters w/backsplash
    • Stainless steel sink
    • Oversized wall shelves
    • 5 cu. ft. refrigerator 20fp
    • 10 cu. ft. refrigerator 28' models
    • 16 cu. ft. refrigerator 33'+ models
    • Countertop microwave (excluding 33'+ models)
    • Over the range microwave 33'+ models
    • 1-piece fiberglass tub/shower w/curtain
    • Residential porcelain elongated toilet
    • Storage cubbies
    • Bath window
    • Linen closet (where applicable)
    • Large vanity sink
    • Residential style bath accessories
    • Queen bed w/headboard
    • Shelf with hanging storage
    • Egress window
    • Nightstand shelves
    • Reading lights
    • Tall mirror
    • Radiant baseboard heat
    • 20 gallon electric water heater
    • Wall unit air conditioner(s)
    • 50 amp electrical service
    • Pex water lines
    • Metal underbelly ipo poly
    • Automatic door closure
    • Rinnai tankless water heater
    • Serta queen bed
    • Moen kitchen and bath fixtures
    • 40,000 BTU ducted RV furnace ipo
    • 30 amp electrical service
    • 2 burner electric cooktop (standard on 33'+)

America's Park Cabins Update Alerts

Please sign up below if you would like to receive notifications when we make updates to this brand. Or, if you only want updates on a particular floorplan, you can select to be updated on each one individually.